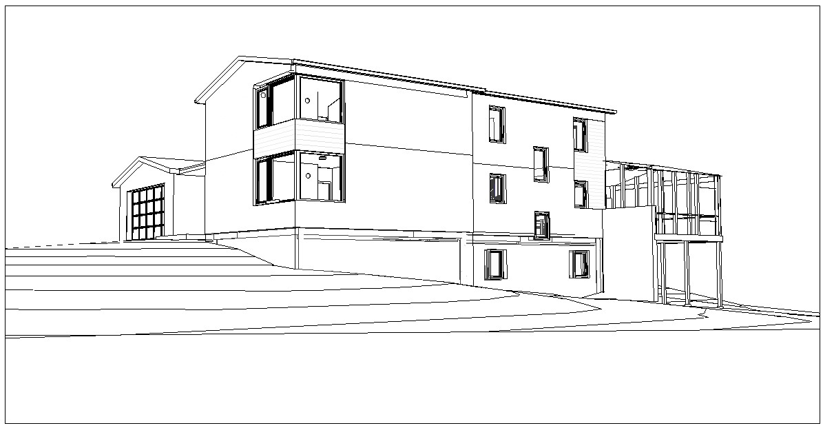
Vienna Hills Passive-targeted Project details Design Architect Robin McGrew Contractor Allen Built, Inc. Phius CORE Prescriptive 2024 Design Certified 2025 Back to portfolio